GLOUCESTERSHIRE HOUSE REMODEL

LOCATION: STROUD, GLOUCESTERSHIRE

PROJECT INFORMATION

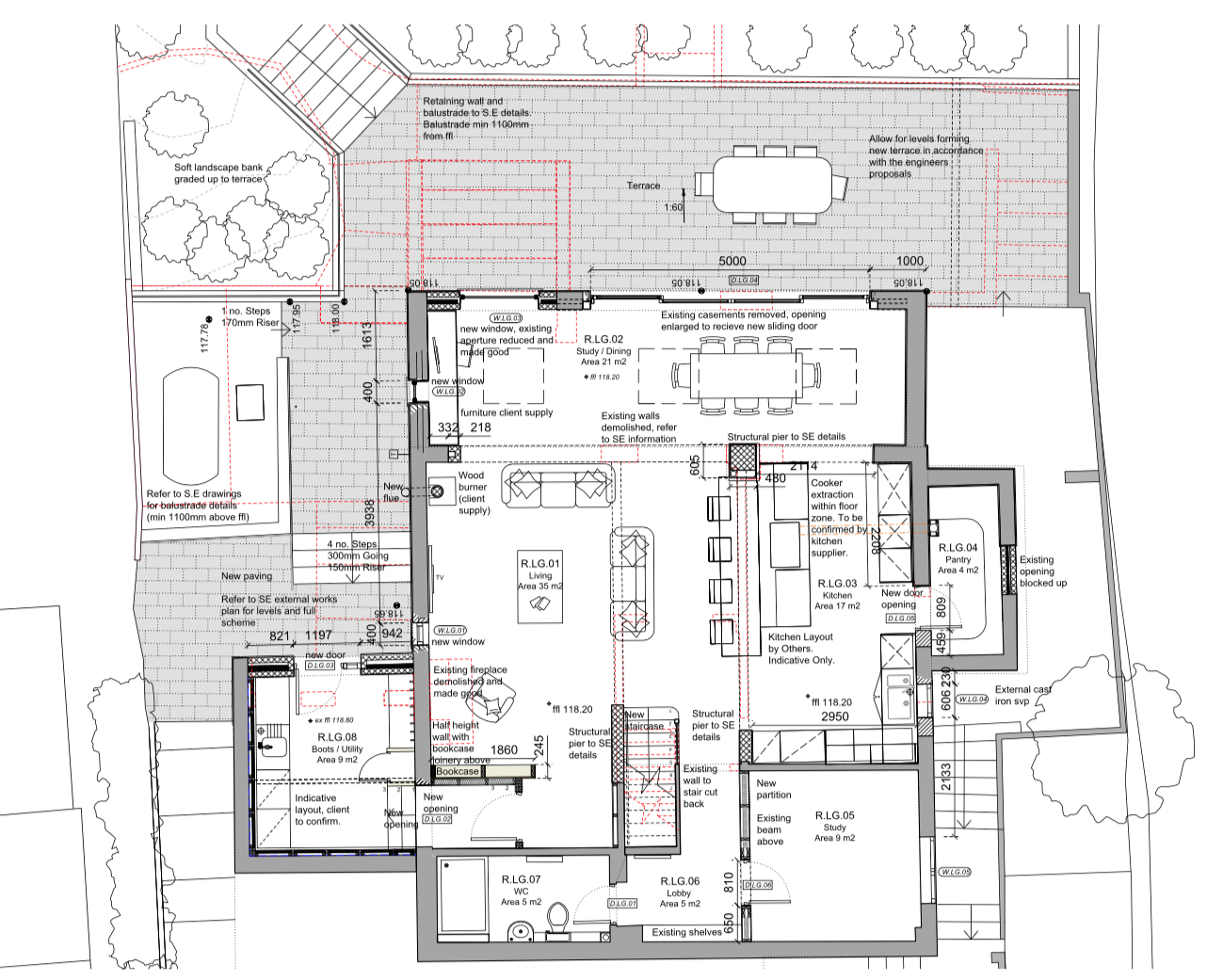
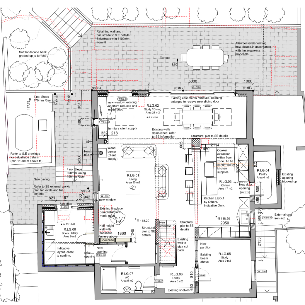
Full refurbishment of a mid century property, to create a large open plan kitchen dining and living space.

Large format sliding doors and picture windows frame views across the Slad valley creating a fantastic family room and entertaining space.

A new raised landscape terrace, transforms the connection with the garden.

SCROLL TO PROJECT GALLERY

PROJECT GALLERY

image
image
image
image